Ring til os på
📞 5614 1962
Perfekt til arbejdet med skadelige stoffer
Vores miljøvogne er godkendt af arbejdstilsynet til arbejdet med asbest, epoxy, PCB, Bly-maling samt forskellige andre kemikalier og olier.
En miljøvogn er en letvogn, der ligesom en mandskabsvogn, er godkendt med opholdsrum, bad og toilet, omklædning, spiseplads og kontor samlet i én mobil enhed. Vognen er optimal til f.eks. en byggeplads hvor der skal arbejdes med skadelige stoffer, når medarbejderne har brug for en pause, et sted at klæde om eller som kontorplads til de mere administrative opgaver.

2 pers. Miljøvogn

2 pers. Miljøvogn m/tanke, vakuum

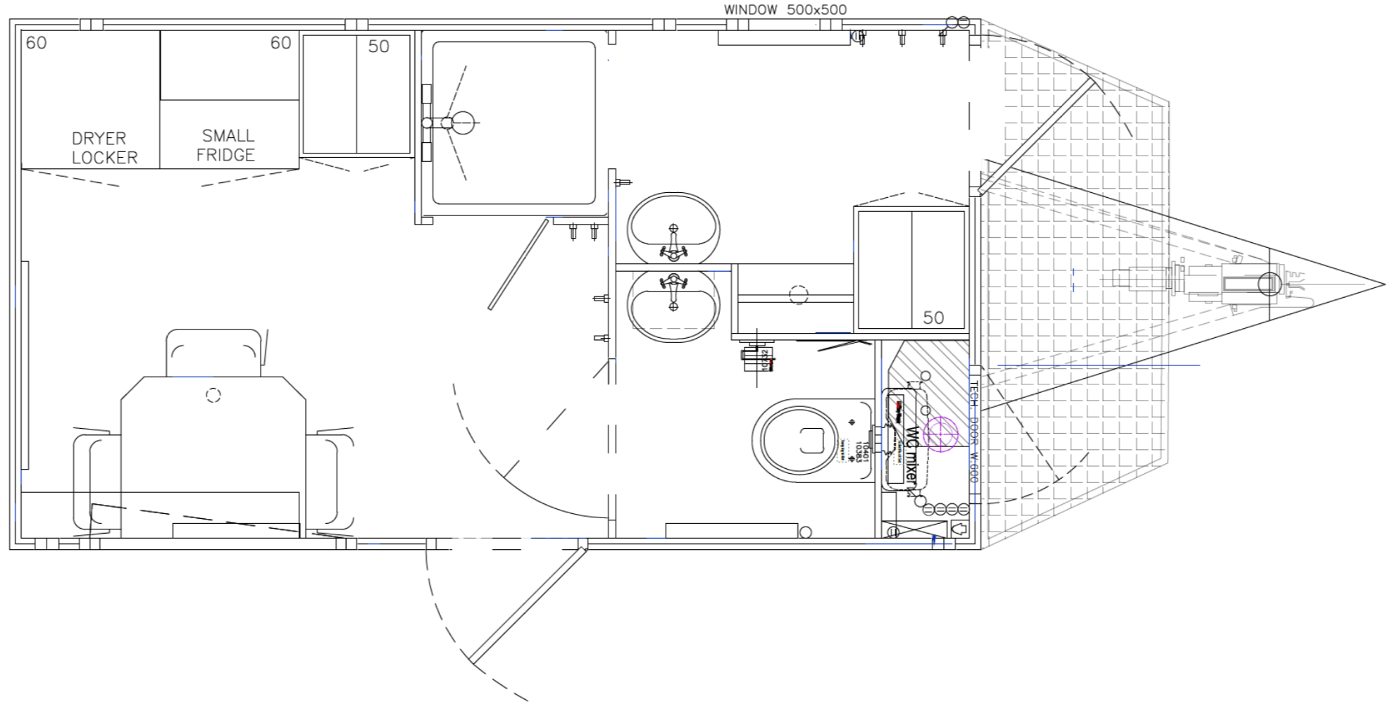
4 pers. Miljøvogn 660

4 pers. Miljøvogn 660
med vakuumtoilet
4 pers. Miljøvogn Pioner
med solceller, batteri, gas og tanke
3 pers. Miljøvogn 570
Miljøvogn kendetegn
Spiserum, toilet & bad samt omklædningsskabe.
Godkendt til arbejdet med skadelige stoffer!
Nye Miljøregler vedrørende asbestholdigt materiale.
Folketinget har vedtaget at virksomheder fremover skal være autoriseret, hvis de skal nedrive asbestholdigt materiale.
Miljøvogn fra Karlsvognen A/S
En Miljøvogn er en mandskabsvogn til arbejdsopgaver med specielle behov, hvor opholdsrummet er adskilt fra arbejdstøjet.
Pr. 1. januar 2025 træder nye regler i kraft vedrørende håndtering af nedrivning af asbest og skadelige stoffer. Disse regler betyder, at Arbejdstilsynet har skærpet kravene ved at klassificere arbejdet med asbest som ”støvende arbejde”.
- Støvende arbejde betyder skærpede krav til selve udførelsen, bl.a. åndedrætsværn, fulddragt og overtræk til sko, samt miljøvogn.
- Autorisation er påkrævet for nedrivning af asbestholdige materialer.
- Miljøvogne skal være tilgængelig for at sikre arbejdsvilkår ved håndtering af bl.a. asbest, olie, epoxy og PCB
De nye regler gør det vigtigere end nogensinde før at have det rette udstyr, som en godkendt miljøvogn til asbestnedrivning.
Karlsvognen A/S er leverandør med udlejning og salg af miljøvogne. Med konkurrencedygtige priser og et imponerende udvalg af miljøvogne er vi førende inden for branchen. Vores vogne er udstyret med komfortable faciliteter - inklusiv toiletter - for at sikre en behagelig arbejdsoplevelse, og vores miljøvogne lever op til de nyeste regler.
For at sikre den højeste kvalitet og hurtig service har vi vores eget værksted, hvor vi vedligeholder og reparerer vores vogne. Vores dedikerede team af fagfolk står klar til at hjælpe dig med at finde den rette løsning for din virksomhed, uanset hvilken type af miljøvogn og relaterede produkter I har behov for at leje eller købe.
